豎井XQJ-SJ
價格:面議
發布時間:2017-6-19 11:10:52
來源:http://www.eeeeer.com/
瀏覽次數:江蘇海馳電氣制造有限公司
|
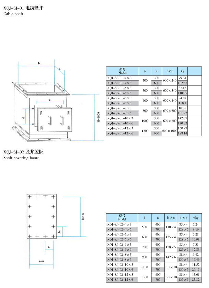
本文將會在豎井XQJ-SJ的型號、用途、規格、重量等方面做詳細的說明與介紹,江蘇海馳電氣制造有限公司作為是專業的豎井XQJ-SJ生產廠家,為您選購適合自己的產品做一定的指導是必要的。
要問豎井XQJ-SJ哪里好,當選江蘇海馳電氣制造有限公司。
詳細信息




上一篇我們就待繼續!做了詳細介紹和說明, 待繼續!在下一篇繼續做詳細介紹,如需了解更多我們的信息,請持續關注。
本文由豎井XQJ-SJ生產廠家江蘇海馳電氣制造有限公司于2017-6-19 11:10:52整理發布。
轉載請注明出處:http://www.eeeeer.com/qiaojia/2596.html。
上一篇: 待繼續!
下一篇:待繼續!
相關新聞
相關產品
|
|
|
|